Τι αναφέρει το αρμόδιο Υπουργείο
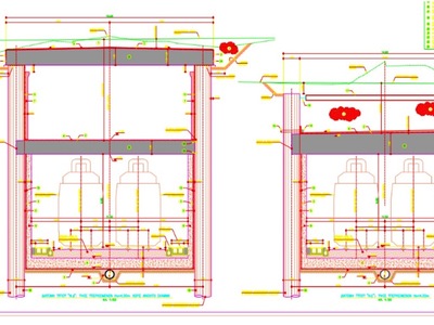
Τα σχέδια των διατομών των ορυγμάτων του τρένου που προγραμματίζεται να περάσει βυθισμένο κάτω από την επιφάνεια του εδάφους από το Ρίο μέχρι και την οδό Κανελλοπούλου σας παρουσιάζει σήμερα το thebest.gr. Τα σχέδια που έχει στη διάθεσή της η δημοτική Αρχή και των οποίων έχουν λάβει γνώση οι κάτοικοι των περιοχών από όπου θα διέρχεται το τρένο, δείχνουν ότι πρόκειται για κλειστά ορύγματα όπως αρχικά είχε δεσμευτεί η ηγεσία του υπουργείου Μεταφορών.
Τούτο σημαίνει ότι το τρένο δεν θα είναι ορατό με αποτέλεσμα η επιφάνεια του εδάφους να είναι ελεύθερη και διαθέσιμη για ανάπλαση αφού θα καλύπτεται κανονικά από χώμα. Σύμφωνα με τα όσα έχει εξαγγείλει η πολιτεία μπορεί, σε συνεργασία με τον Δήμο, θα δημιουργηθεί ένα γραμμικό πάρκο με ποδηλατοδρόμους, πεζόδρομους και γκαζόν.
Τα σχέδια της ΕΡΓΟΣΕ αποκαθιστούν και την ηρεμία τους κόλπους των πολιτών του Καστελόκαμπου οι οποίοι αναστατώθηκαν, πριν δουν τις διατομές με τα μάτια τους, από φήμες και ανακοινώσεις του υποψηφίου Περειφερειάρχη Κώστα Σπηλιόπουλου που ήθελαν να ορύγματα να είναι ανοικτά και στις δύο πλευρές να υπάρχουν τσιμεντένιοι τοίχοι.
Από την μορφή αυτή του cut and cover εξαιρείται μόνο το κομμάτι που το έργο περνάει από χείμαρρο Χάραδρο όπου για τεχνικούς λόγους η γραμμεί θα βυθιστεί. Όσο αφορά τώρα στη διαδικασία της προκήρυξης αυτή θα γίνει ως μελετοκατασκευής, για κάποια κομμάτια (Κανελλοπούλου- Καστελόκαμπος) όπου αυτή την στιγμή βρισκόμαστε στις προμελέτες.




Όπως εξήγησε μιλώντας «Στο Κόκκινο Πάτρας 107,7» ο γενικός γραμματέας Μεταφορών Θάνος Βούρδας στο ίδιο έργο, που έχει ενταχθεί χρηματοδοτικά στο ΕΣΠΑ και για το οποίο έχουν διασφαλιστεί τα χρήματα, θα είναι και οι μελέτες για το επόμενο τμήμα (Άγ. Διονύσιος- Άγ. Ανδρέας) όπου προβλέπεται πλήρης βύθιση.
Σύμφωνα με τον κ. Βούρδα αυτή την στιγμή τα τεύχη δημοπράτησης βρίσκονται στον έλεγχο της Διαχειριστικής Αρχής, προκειμένου να διασφαλιστεί η όλη διαδικασία σε τεχνικό επίπεδο της προκήρυξης και δεν υπάρχει κανένα θέμα αλλαγής του σχεδιασμού.
Αναφορικά με το κομμάτι της υπογειοποίησης μέσα στην Πάτρα (από τον Αγ. Διονύσιο μέχρι τον Άγ. Ανδρέα) έχουν γίνει συζητήσεις με τα αρμόδια όργανα της Ευρωπαϊκής Επιτροπής, προκειμένου στο συγκεκριμένο έργο να παραταχθούν και οι οριστικές μελέτες για το τμήμα Άγ. Διονύσιος - Άγ. Ανδρέας και να ενταχθεί στο αντίστοιχο ευρωπαϊκό πρόγραμμα για να χρηματοδοτηθεί και αυτό.
Για να διασφαλιστούν τα κονδύλια χρειάζονται να κατατεθούν οι οριστικές μελέτες, ωστόσο το κομμάτι αυτό έχει εγγραφεί ως μελλοντικό έργο, προκειμένου με την οριστικοποίηση των μελετών να δεσμευτούν και τα αντίστοιχα χρήματα.
Ακολουθήστε το thebest.gr στο Google News και μάθετε πρώτοι όλες τις ειδήσεις
Δείτε όλες τις τελευταίες Ειδήσεις από την Ελλάδα και τον Κόσμο, τη στιγμή που συμβαίνουν, στο thebest.gr












